Barandilla de husillo roscado
Barandillas tipo sargento de husillo roscado
Seleccione desde el selector de tipos, este tipo de barandilla, tal como observa en la imagen:

Para añadir este tipo de barandilla en un forjado de su proyecto deberá proceder del siguiente modo:
1. Abra una vista de planta o 3D.
2. En el menú de UrbiCAD, haga click en Barandilla husillo desde el selector de tipos (ver imagen anterior).
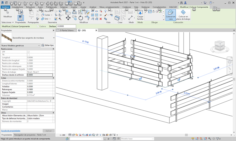
3. Asigne los parámetros de Voladizos, Altura listón y Tipo de defensas horizontales, etc., del cuadro de Propiedades del tipo seleccionado (ver imagen).

4. Seleccione ahora en Dibujar uno de los modos de dibujar la barandilla (lo más cómodo es la opción de seleccionar línea tal como observa en la imagen inferior).

Puede también utilizar otras opciones como línea (marcando directamente el punto inicial y el final de la barandilla) o rectángulo (para huecos horizontales), según le interese.
5. Puede colocarla seleccionando ahora en Dibujar uno de los modos de dibujar la barandilla (lo más cómodo es la opción de seleccionar línea tal como observa en la imagen inferior).Seleccione ahora la línea correspondiente al canto superior del forjado, y una vez seleccionada haga click para colocar la barandilla.

Observe como la barandilla se coloca de extremo a extremo del canto del forjado.
Si desde Propiedades ha ajustado correctamente el valor de Retranqueo, los listones se retranquean con relación a la esquina del forjado, un determinado valor, así de este modo los encuentros en esquinas no producirán un solapamiento (ver imagen superior).
Para esquinas en ángulo recto, el valor por defecto que se muestra en Propiedades, del Retranqueo de 0,16 m es suficiente para evitarlo.
En esquinas con otros ángulos, deberá colocar primero la barandilla y posteriormente ajustar este valor probando a ver cual es el más apropiado para que se muestre conforme sus necesidades.
Un consejo: Si resuelve los encuentros en vista planta, le puede resultar más fácil designar los pinzamientos de ambos extremos de barandilla.
Utilización de Línea para la colocación de barandillas:
En este caso (que es el que por defecto se ofrece al seleccionar directamente desde la cinta de opciones), solamente debe marcar los puntos P1 inicial y P2 final de los extremos de la barandilla sobre el forjado.

Puede ser interesante marcar estos puntos inicial y final para aquellos casos en los que la barandilla no debe ir de extremo a extremo del canto del forjado.

De todos modos este mismo efecto puede lograrse colocando la barandilla con la opción de Seleccionar línea, y posteriormente desde los pinzamientos de las esquinas ajustarla hasta donde se quiera.
Utilización de rectángulo para la colocación de barandillas:
En este caso, debe marcar los puntos P1 y P2 de los extremos de la diagonal de un rectángulo, para la colocación de la barandilla.

Depende de cual es P1 y cual es P2, la barandilla se colocará con las mordazas, los tablones y los listones hacia el interior o el exterior del hueco.
Por último y si procede, deberá ajustar los encuentros en las esquinas del modo descrito anteriormente asignando valores correctos de Retranqueo.

Colocación de barandillas sobre forjados inclinados:
Se pueden colocar este tipo de barandillas en forjados inclinados, igual que lo hacemos en forjados horizontales y se ha descrito anteriormente:
1. Abra una vista de planta o 3D.
2. En el menú de UrbiCAD, haga click en Barandilla husillo roscado desde el selector de tipos.
3. Asigne los parámetros de Voladizos, Altura listón y Tipo de defensas horizontales, etc., del cuadro de Propiedades del tipo seleccionado (ver imagen).
4. Seleccione ahora en Dibujar uno de los modos de dibujar la barandilla (lo más cómodo es la opción de seleccionar línea).

Puede también utilizar otras opciones como línea (marcando directamente el punto inicial y el final de la barandilla) o rectángulo (para huecos horizontales), según le interese.
5. Puede colocarla seleccionando ahora en Dibujar (comando abreviado CM) uno de los modos de dibujar la barandilla (lo más cómodo es la opción de seleccionar línea tal como observa en la imagen inferior).Seleccione ahora la línea correspondiente al canto superior del forjado, y una vez seleccionada haga click para colocar la barandilla.
Desde aquí le ofrecemos un videotutorial para que vea cómo proceder con la colocación de las barandillas tipo sargento como lo son las de husillo roscado, sobre forjados inclinados (y evidentemente horizontales).
Cambio global del tipo de barandillas colocadas:
Una vez colocadas las barandillas en un proyecto, es posible hacer un cambio global de tipo, para ello:
1. Seleccionamos un tramo de la barandilla a cambiar.
2. Hacemos click con el botón derecho del ratón sobre la misma y seleccionamos Todos los ejemplares.
3. Seleccionamos desde Propiedades, la nueva barandilla a cambiar, y ejecutamos la acción.
El resultado será un cambio global de tipo, tal como se deseaba, sin necesidad de hacerlo uno a uno.