Red horizontal Tipo-S
Colocar Red horizontal Tipo-S
Seleccione desde el selector de tipos, la colocación de redes, tal como observa en la imagen:

Para colocar este tipo de redes para cubrir huecos horizontales deberá proceder del siguiente modo:
1. Abra una vista de planta o 3D. Si trabaja en 3D debe recordar que en 3D no se tienen los niveles definidos, razón por la que le recomendamos trabajar siempre en vista planta y al nivel de la base de apoyo de la red.
2. En el menú de UrbiCAD, haga click en el tipo de Red horizontal Tipo-S desde el selector de tipos (ver imagen anterior).
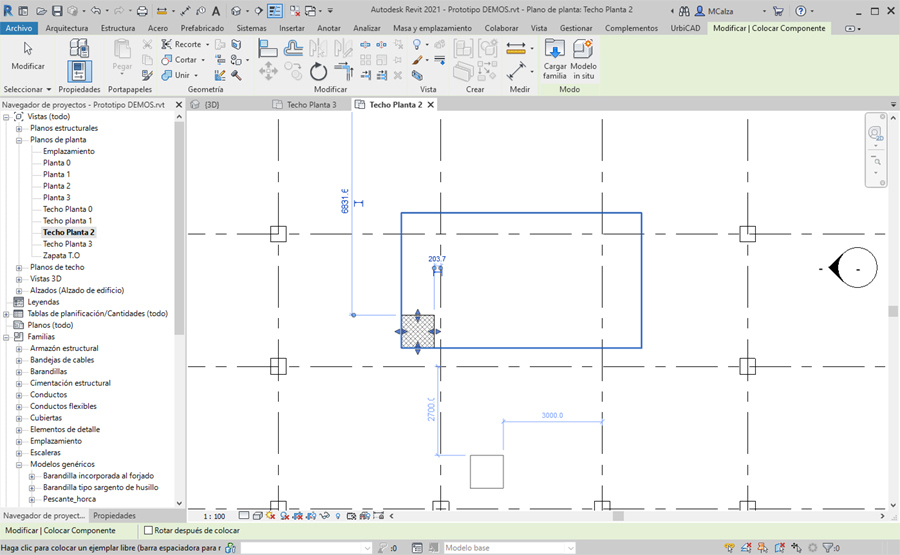
3. Una vez definido su nivel, para su colocación haga click en un punto del hueco para su colocación (ver imagen inferior).

4. Por último, desde los pinzamientos estire la red hasta ajustarla al tamaño del hueco, tal como observa en la imagen, o bien desde Propiedades ajuste las dimensiones de la red:
