Fases Seguridad Integral y Autoprotección
Fases Seguridad Integral y Autoprotección
La metodología BIM permite incorporar la dimensión tiempo mediante la incorporación de Fases.
Si usted ya trabaja por fases, no necesitará esta información (en todo caso vea el video de ayuda enlazado más abajo), pero si no es así, en tal caso lo que le exponemos a continuación le será de gran ayuda desde el punto de vista de la Autoprotección.
Cada fase del proyecto representa un periodo de tiempo distinto en la vida del proyecto o en la vida útil del Edificio, por ello, es necesario crear una fase (fase de creación) para colocación de los elementos de Seguridad Integral y Autoprotección. Y si fuese necesario, una fase (fase de derribo) de desmontaje (o de mantenimiento o de restitución) de dichos elementos.
Los criterios de instalación/mantenimiento los puede agrupar en su conjunto (por ejemplo: instalación/mantenimiento de la señalización de Emergencias y Evacuación) o por elemento de seguridad insertado (por ejemplo: instalación/mantenimiento de alarmas de la planta 1ª).
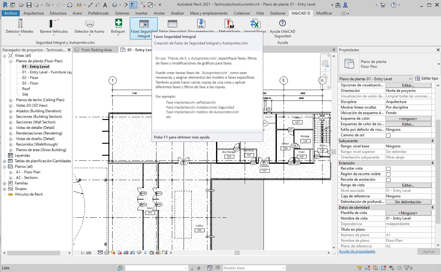
Para ello, debemos ir a la cinta de opciones de UrbiCAD y seleccionar Fases de Seguridad Integral

Trabajar con Fases es algo muy personal, por lo que partiendo de la premisa de que no se puede eliminar en Revit una Fase creada (sí se puede refundir Fases entre si, pero no eliminarla), consideramos que es el usuario el que debe crearlas y asignarles el nombre identificativo que estime oportuno.
En la ventana emergente de Proceso por fases observaremos tres pestañas:
- En la primera pestaña (Fases del proyecto) debemos crear, en el periodo temporal adecuado, las fases que consideremos necesarias de Emergencias y Autoprotección, por ejemplo:
- Montaje alumbrado de emergencia, planta 1ª
- Montaje Alarmas incendio, planta 1ª
- Montaje Extintores palnta 1ª
Medio
o simplemente:
- Medios Seguridad y Autoprotección planta 1ª
- Medios Seguridad y Autoprotección planta 2ª
Lógicamente es usted el que debe crear fases al nivel de detalle que considere oportuno.

- Desde la pestaña de Filtros de fases podemos crear nuevos filtros o modificar los existentes, para adecuar la visibilidad de los elementos según el estado de fase, atendiendo a:
|
ESTADO DE LA FASE |
SIGNIFICADO |
|
Nuevo |
Elementos creados en la fase de la vista |
|
Existente |
Elementos creados en fases anteriores que permanecen en la fase de la vista |
|
Derribado |
Elementos creados en fases anteriores y derribados en la fase de la vista |
|
Temporal |
Elementos creados y derribados en la fase de la vista |
- Para cada estado de la fase anterior, hay tres posibilidades:
|
|
CÓMO SE MOSTRARÁN LOS ELEMENTOS |
|
Por categoría |
Indicados a nivel de vista; según su definición en el cuadro de diálogo Estilos de objeto. |
|
Modificado |
Usará los valores gráficos indicado en la pestaña "Modificaciones de gráficos". |
|
No mostrado |
No muestra los elementos. |

- Desde la pestaña de Modificaciones de gráficos puede elegir cómo representar los elementos que se muestran cuando se haya seleccionado “Modificado” en la pestaña anterior (como ha sido nuestro caso del ejemplo).

Una vez creado y configurado el Proceso por fases, aplicaremos los cambios y para finalizar aceptaremos los cambios.
Desde este enlace, podrá ver una película completa donde verá cómo aplicar el concepto de Fases (y también el de vistas asociadas a fases que veremos a continuación) respecto a la implementación de la Autoprotección en su modelo de Revit.
Trabajando con las Fases
Si quiere ampliar información acerca de cómo trabajar con las Fases del proyecto o tienen dudas al respecto, se recomienda consultar la Ayuda de Autodesk sobre el Proceso por fases de un proyecto.
Desde este enlace, le damos paso directo a dicha ayuda de Autodesk: Acceso a Ayuda específica de Revit
Acerca de las Vistas
Para realizar un proyecto por fases, es necesario tener unas vistas que permitan su visualización. Recomendamos duplicar aquellas vistas donde colocaremos o visualizaremos los elementos de Seguridad Integral y Autoprotección del proyecto (Detectores, Alarmas, Cámaras, Barreras, Señalización, Dispositivos de Extinción de Incendios, etc.), estas vistas deberán contener la Fase que habremos creado previamente, acorde a las necesidades de su proyecto.

Para duplicar la vista, desde el Navegador de proyectos, seleccionamos la vista deseada, hacemos después click en el botón derecho del ratón y seleccionamos Duplicar vista (ver imagen anterior).
Ahora, debemos asignarle la fase a dicha/s vista/s que hemos duplicado, para ello, la seleccionamos desde el Navegador de proyectos y desde Propiedades, escogemos la Fase y Filtro de fases que hayamos creado previamente.

Los elementos de Seguridad Integral y Autoprotección de UrbiCAD que sean colocados en estas vistas, ya tendrán asignadas la misma fase de la vista, pero es recomendable revisarlo siempre para comprobar que lo hemos realizado correctamente.
En caso contrario, es decir, si ya hemos colocado los elementos previamente en la vista y a posteriori le asignamos la fase a la vista, deberemos comprobar que dichos elementos se encuentran en la Fase que queremos.
Para hacerlo, seleccionaremos el elemento y, desde Propiedades, Proceso por fases (ver imagen anterior) comprobaremos su Fase y Filtro de fases asignado.